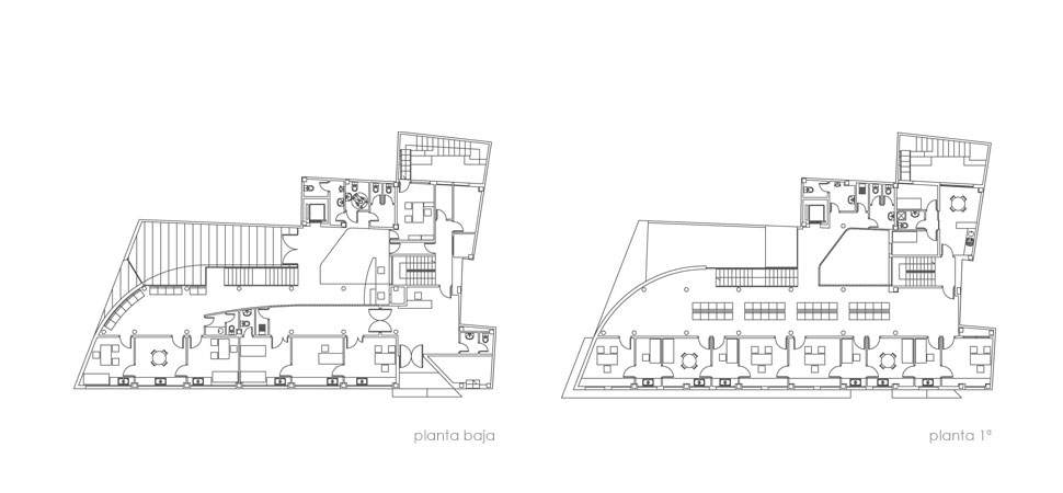
Centro de Salud en Meliana, Valencia

ARQUITECTOS:

Carlos Campos

PROMOTOR:

Servei Valencià de Salut (Generalitat Valenciana)

FECHA:

1990 - 1994

SUPERFICIE CONSTRUIDA:

1.267 m²

Scroll al inicio
Carlos Campos Arquitectura
Resumen de privacidad

Esta web utiliza cookies para que podamos ofrecerte la mejor experiencia de usuario posible. La información de las cookies se almacena en tu navegador y realiza funciones tales como reconocerte cuando vuelves a nuestra web o ayudar a nuestro equipo a comprender qué secciones de la web encuentras más interesantes y útiles.