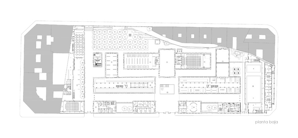
Centro deportivo cultural "la Petxina", Valencia

ARQUITECTOS:

Carlos Campos y Carlos Payá

PROMOTOR:

Ayuntamiento de Valencia

FECHA:

2000 - 2003

SUPERFICIE CONSTRUIDA:

22.672,6 m²

Scroll al inicio
Carlos Campos Arquitectura
Resumen de privacidad

Esta web utiliza cookies para que podamos ofrecerte la mejor experiencia de usuario posible. La información de las cookies se almacena en tu navegador y realiza funciones tales como reconocerte cuando vuelves a nuestra web o ayudar a nuestro equipo a comprender qué secciones de la web encuentras más interesantes y útiles.