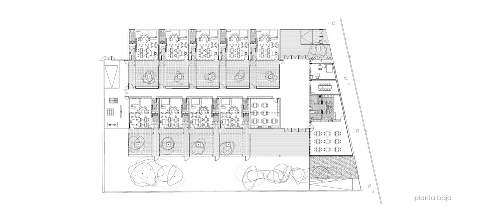
Colegio de Educación Infantil y Primaria "Padre Catalá", Valencia

ARQUITECTOS:

Carlos Campos, Emilio Sánchez y Antonio Albaladejo

PROMOTOR:

CIEGSA

FECHA:

2005-2009

SUPERFICIE CONSTRUIDA:

1.053,11 m²

Scroll al inicio
Carlos Campos Arquitectura
Resumen de privacidad

Esta web utiliza cookies para que podamos ofrecerte la mejor experiencia de usuario posible. La información de las cookies se almacena en tu navegador y realiza funciones tales como reconocerte cuando vuelves a nuestra web o ayudar a nuestro equipo a comprender qué secciones de la web encuentras más interesantes y útiles.