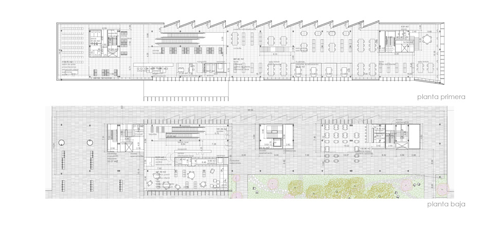
Concurso Biblioteca en la Avda. Pío XII, Vila-real

RESULTADO:

ARQUITECTOS:

Carlos Campos, Miguel del Rey, Antonio Gallud y J. Ignacio Fuster.

PROMOTOR:

Ajuntament de Vila-real

FECHA:

2009

Scroll al inicio
Carlos Campos Arquitectura
Resumen de privacidad

Esta web utiliza cookies para que podamos ofrecerte la mejor experiencia de usuario posible. La información de las cookies se almacena en tu navegador y realiza funciones tales como reconocerte cuando vuelves a nuestra web o ayudar a nuestro equipo a comprender qué secciones de la web encuentras más interesantes y útiles.