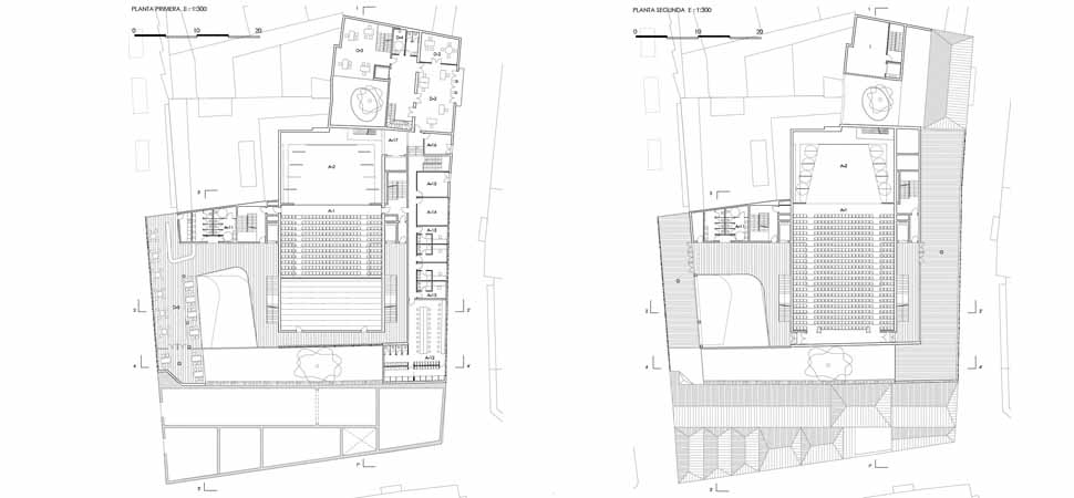
Concurso Espacio Parque San Francisco, Puerto de la Cruz

RESULTADO:

Finalista

ARQUITECTOS:

Carlos Campos y Emilio Sánchez

PROMOTOR:

FECHA:

2013

Scroll al inicio
Carlos Campos Arquitectura
Resumen de privacidad

Esta web utiliza cookies para que podamos ofrecerte la mejor experiencia de usuario posible. La información de las cookies se almacena en tu navegador y realiza funciones tales como reconocerte cuando vuelves a nuestra web o ayudar a nuestro equipo a comprender qué secciones de la web encuentras más interesantes y útiles.